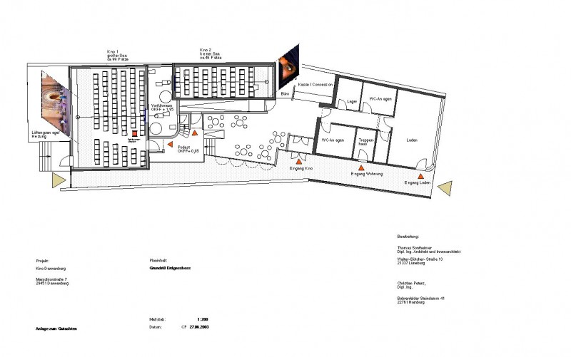
Kino Dannenberg

Grundriss < 3 / 3 >

Entwicklung eines Kinostandortes im Bestand der Stadt

Samtgemeinde Dannenberg, 2003

Projektentwicklung mit Thomas Sontheimer

Zusammenfügung mehrerer Baukörper in einer Hinterhofsituation in der Dannenberger Altstadt zu einem Kino mit zwei Sälen.
Überdachung des Innenhofes als Foyer und Verteilerflur.

Sie sind hier