Umnutzung einer Werkhalle zu Büroräumen
Hamburg, 2011/2012
Gesamtprojekt für raumordner
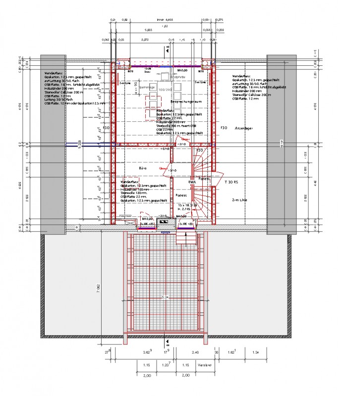
In die alte Produktionshalle der Firma werden im laufenden Betrieb neue Büroflächen eingebaut.
Hierzu wird das Gebäude bis auf die Stahlgrundkonstruktion teilentkernt, und im Holzständerbau, als Haus in Haus Lösung, um zwei Geschosse Büroflächen erweitert.
Der bereitsvorhandene Büroflächen im Erdgeschoss werden nach Fertigstellung des Neubaus und Teilumzug modernisiert.
