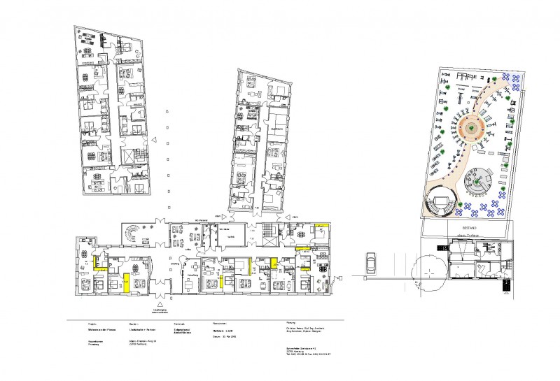
Wohnpark an der Pinnau

Umbau einer Fabrikanlage zu Senoirenwohnungen

Pinneberg, 2006

Grundrissentwiclung, Innenarchitektur für Lindschulte u. Partner

Zusammenarbeit mit Jörg Schmitter

Sie sind hier